Zurück Die Geschäftsbereiche Lufttrocknung und  Abluftreinigung wurden 2017 von der Firma   	UNITECH Kunststoff GmbH   übernommen und weiterentwickelt.  So haben wir heute Zugriff auf das Wissen aus  40 Jahre Erfahrung  in der Auslegung und dem Bau von  Prozess- / Neutralisations- und Abluftwaschern  über 3.000 realisierten Anlagen weltweit
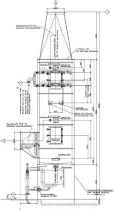
Pure-TEK ist die konsequente Weiterentwicklung von Litherm-TEK zu einem neuen, kompakten Gas- / Fortluftreinigungssystem, welches hocheffizent   durch den Einsatz von innovativer Düsentechnik selektiv sorbierenden Waschfluiden (nicht giftig und biologisch abbaubar) in der Lage ist, die gezielte Abscheidung einer Vielzahl von anorganischen und organischen Schadstoffen wie z.B.: Schwermetallen Schwefelverbindungen unter Einhaltung von VDI 3676, VDI 3679, VDI 3928 zu gewährleisten.
Pure-TEK

Anschrift

FluCoS GmbH & Co. KG Hauptstraße 24 D-97941 Tauberbischofsheim

Telefon

Tel.: 09341 - 89 69 554 Fax: 09341 - 89 69 552

Internet / E-Mail

www.flucos.de info@flucos.de